ID : 2643
RC8A (セーフティモーション / セーフティモーションUL)
ここで記述しているロボットコントローラの仕様の定義は下記のとおりです。
- セーフティモーション仕様 : コントローラ型式の適合規格を示すコードが"NM"
- セーフティモーションUL仕様 : コントローラ型式の適合規格を示すコードが"UM"
コードの詳細については、"RC8シリーズロボットコントローラ説明書"の"コントローラ型式"に記載のある区分"G"を参照してください。
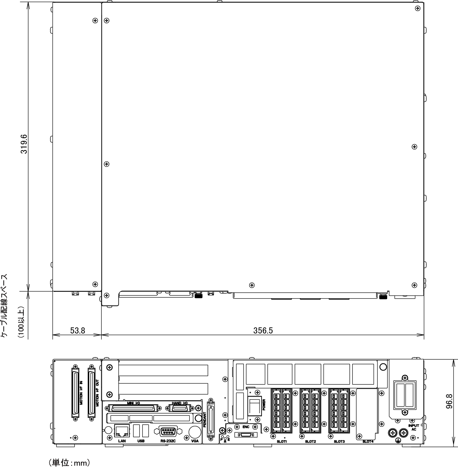
外形寸法
ロボットコントローラの外形寸法を下図に示します。
セーフティモーション仕様

セーフティモーションUL仕様
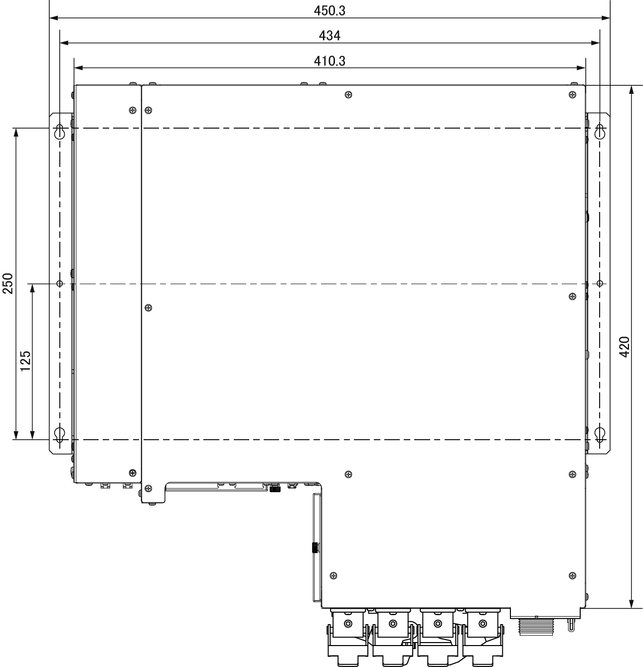
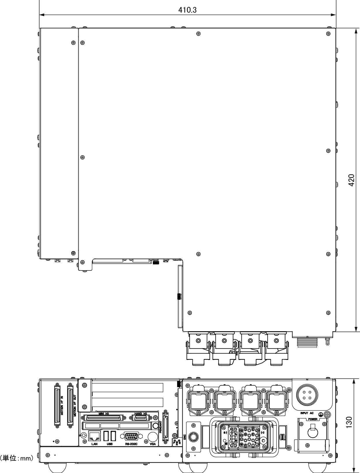
ステーによる固定の場合
専用ステーを使って固定する場合の取付け方法を下図に示します。
セーフティモーション仕様


セーフティモーションUL仕様


ID : 2643

