ID : 1319
RC8 (標準 / 標準UL)
ここで記述しているロボットコントローラの仕様の定義は下記のとおりです。
- 標準仕様 : コントローラ型式の適合規格を示すコードが"NI"
- 標準UL仕様 : コントローラ型式の適合規格を示すコードが"UI"
コードの詳細については、"RC8シリーズロボットコントローラ説明書"の"コントローラ型式"に記載のある区分"G"を参照してください。
RC8 セーフティI/Oレス仕様の外形寸法は"RC8外形寸法(セーフティI/Oレス)"を参照してください。
(セーフティI/Oレス仕様は、コントローラ型式の適合規格を示すコードが"NN"です。)
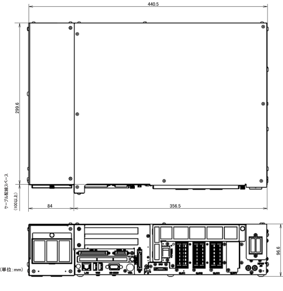
外形寸法
ロボットコントローラの外形寸法を下図に示します。
標準仕様

標準UL仕様

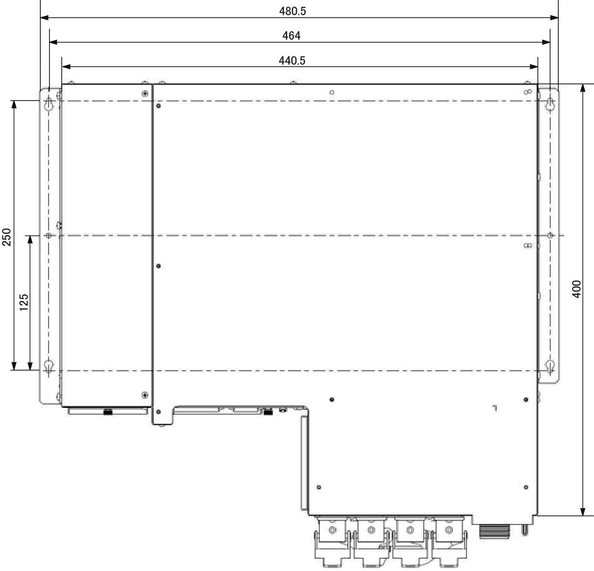
ステーによる固定の場合
専用ステーを使って固定する場合の取付け方法を下図に示します。
標準仕様


標準UL仕様


ID : 1319

