ID : 18194
可水平调整 机器人固定板
安装在机器人安装面和混凝土面之间的机器人固定板。
利用调平功能,可设定成所需的水平度。

构件
- 调平板(数量 : 1)
- 基础盖板(数量 : 4)
- 定位板(个数 : 8)(*1)
- 六角螺栓 M20 × 100mm 强度区分8.8(个数 : 4)(*2)
- 六角螺母 M20 × 8mm(个数 : 4)(*2)
*1 : 焊接到调平后的基础盖板和调平板。
*2 : 调平用。
质量
约220 kg
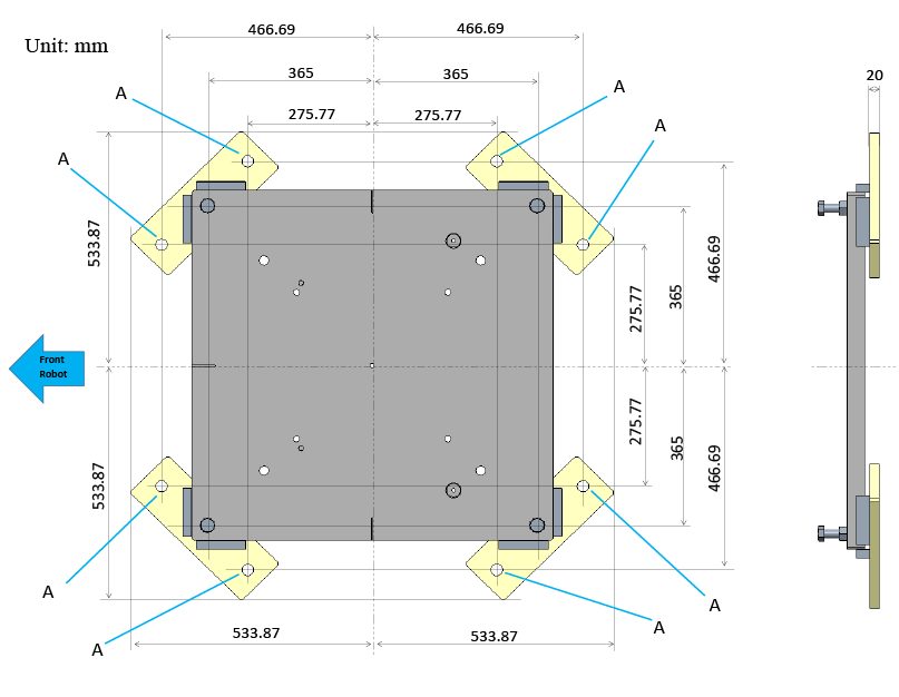
盖板设置孔

K : 化学锚栓用
L : 机器人固定螺栓用(VLA系列用)
M : 定位销钉用(VLA系列用)
N : 机器人固定螺栓用(VMB系列用)
O : 定位销钉用(VMB系列用)
安装方法
推荐使用工具、器具
- 化学锚栓(*1)
- 钻床(钻孔加工机床)
- 钻头(ø9, ø24孔用)
- 角磨机(金属磨削)
- 高精度水平仪(水准仪)
- 扭力扳手 带套筒/钻头
- 弧焊机
- 吊环螺栓 M24(个数 : 4)
- 金属用灰浆(*2)
*1 : 推荐品登载在下面。除以下步骤之外,化学锚栓还要根据购买的化学锚栓附带的使用说明书使用。
| 零部件名称 | 制造商 | 型式 | 孔的深度和直径 | 数量 |
|---|---|---|---|---|
| 化学胶囊 | HILTI | HVU M20x170 | ø24x170mm | 8 |
| 带螺纹锚杆 | HAS-E M20x170/48 | 8 |
*2 : 为防止因机器人动作时反复产生反作用力而造成盖板细微移动,推荐在混凝土面抹上金属用灰浆,将安装面抹平。
安装前的准备
1
在安装机器人的地面上做好2根垂直轴的标记。
2
在孔(A)的位置做上标记,以配置化学胶囊。

3
使用钻床和钻头ø9(深度170mm),事先在地面钻孔。
4
使用钻床和钻头ø24(深度170mm),在地面钻孔。
- 请务必与地面垂直钻孔。
- 请勿在钻孔中用水。请将孔保持干燥状态。
5
用吸尘器等清除所有的剩余物,使孔的内侧处于没有任何物品的干净状态。
6
将化学胶囊插入孔。
7
插入带螺纹锚杆,确认化学成分接触螺纹后,用螺钉固定。
8
化学胶囊发生作用,固定锚杆,等待锚杆自身与地面结合牢固。等待时间约5小时。
9
清扫放置机器人固定板的地上安装面。
安装步骤
板上有3个切口(B)。切口的轴交点定义为机器人1轴的位置(基准CL)。和板的这个位置对应,有定位销孔。

1
将金属用灰浆抹开后(推荐行程),将4块基础盖板(C)配置在带螺纹锚杆(D)附近的地面。

2
将4块基础盖板固定在地面。用紧固扭矩150Nm拧紧锚杆的螺母部(E)。
3
将4个吊环插入调平板上的机器人固定螺栓孔(N)。

4
用4根吊装皮带(F)(最低长度1m)吊起调平板。

5
使用吊装装置抬起盖板(约220kg)。
6
将调平板(G)配置在固定在地面的4个基础盖板(C)上。

7
使用六角螺栓(H)将盖板调平,使机器人安装面的水平度在±0.5 mm/1000以下。
8
调整成合适的水平度之后,拧入六角螺母(I)。
9
配置定位板(J)。
10
将定位板(J)和基础盖板、水平板的接缝进行电焊。对定位板的全长进行电焊。
关于角落的堆焊,为了将接缝焊成最佳,请遵守所有必要的技术相关注意事项。
如果焊接不正确,将不能正确固定机器人。在机器人运行中还会引起故障,操作员可以遇到危险情况。
至此,机器人固定板的设置完成。
ID : 18194

