ID : 10662
地面设置时的事前准备
准备安装在机器人安装面和混凝土面之间的机器人固定板。
准备地面安装时的机器人固定板作为选件。
机器人固定板的条件
客户自行准备机器人固定板时,机器人固定板需要满足以下条件。
- 机器人固定板的平面度在0.2 mm以下
- 机器人固定板的水平度在±0.5 mm/1000以下
- 使用钢铁材料
- 具有可承受“地面安装时的最大反作用力”的刚性
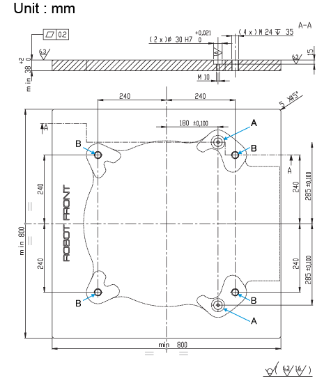
- 如下图所示,准备机器人固定所需的定位销孔、机器人固定螺栓用螺孔

A : 定位销用孔
B : 机器人固定螺栓用孔
对机器人安装面的最大反作用力
机器人动作时在机器人安装面产生的最大反作用力如下所示。
请设计/安装台架及机器人固定板,以确保能承受以下最大反作用力。
地面安装时的最大反作用力

| 动作种类 | Fv(N) | Fo(N) | Mr(Nm) | Mk(Nm) |
|---|---|---|---|---|
| 加速 | 9000 | 4000 | 4000 | 12000 |
| 紧急制动器 | 12000 | 8000 | 7000 | 22000 |
ID : 10662
- 本页相关信息
- 可水平调整 机器人固定板
- 不可水平调整 机器人固定板

