<< 前へ        次へ >>

ID : 1577

ツール座標の設定例

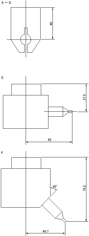
下図に示すチャック形状に対するツール座標の設定と、ツール定義の実例を示します。

チャック形状

ツール定義の実例

A

オリエントベクトルとチャックは平行

B

オリエントベクトルとチャックは平行

C

オリエントベクトルに対してチャックの角度=45°

D

オリエントベクトルとチャックは直角

E

F

 

ID : 1577

<< 前へ        次へ >>