ID : 4818
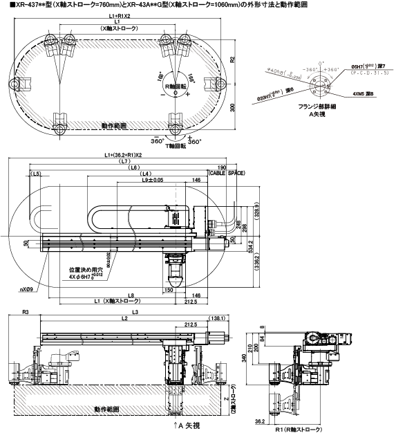
XR-437**型、XR-43A**型

図が見にくい場合はこちらをご覧ください。(PDF:279KB)
(mm)
| L1(X軸ストローク) | 型式 | L2 | L3 | L4 | L5 | L6 |
|---|---|---|---|---|---|---|
| 760 | XR-437**M | 1101 | 1239.1 | 791.2 | 70.2 | 1171.2 |
| 1060 | XR-43A**M | 1401 | 1539.1 | 913.7 | 42.7 | 1443.7 |
| L1(X軸ストローク | 型式 | L7 | L8 | L9 | L10 |
|---|---|---|---|---|---|
| 760 | XR-437**M | 1361.2 | 6x150=900 | 450 | 14 |
| 1060 | XR-43A**M | 1633.7 | 8x150=1200 | 600 | 18 |
| R1(R軸アーム長) | 型式 | R2 | R3 |
|---|---|---|---|
| 200 | XR-43*1*M | 195.6 | 107.7 |
| 250 | XR-43*2*M | 244.6 | 157.7 |
| 300 | XR-43*3*M | 293.4 | 207.7 |
| Z(Z軸ストローク) | 型式 |
|---|---|
| 135 | XR-43**1M |
| 200 | XR-43**2M |
ID : 4818

