ID : 4635
ステー1の製作例
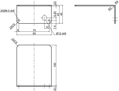
HM-4*60(-W),HM/HMS-4*70*(-W)の場合
| 取付図 |
|
| ステー1 |
バリ、カエリ無きこと 推奨材質:SPCC (t2.0) 表面処理:亜鉛メッキ 単位:mm |
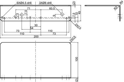
HM/HMS-4*85(-W),HM-4*A0*(-W)の場合
| 取付図 |
|
|
ステー1 |
バリ、カエリ無きこと 推奨材質:SPCC (t2.0) 表面処理:亜鉛メッキ 単位:mm |
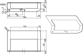
HM-4*60*-ULの場合
UL仕様のHM-600mmストローク(HM-4*60*-UL)に上記のステーを装着し工場出荷時のソフトウェアリミット付近で動作させると、ステーとファーストアームカバーが干渉する恐れがあります。この場合下記を参考にステーを製作ください。
| 取付図 |
|
ステー1 |
<A> バリ、カエリ無きこと 推奨材質:SPCC (t2.0) 表面処理:亜鉛メッキ 単位:mm |
<B> バリ、カエリ無きこと 推奨材質:SPCC (t2.0) 表面処理:亜鉛メッキ 単位:mm |
ID : 4635






